REQUEST A TOUR If you would like to see this home without being there in person, select the "Virtual Tour" option and your agent will contact you to discuss available opportunities.
In-PersonVirtual Tour

Listed by Hovanes Margarian • Margarian Realty
$ 2,200,000
Est. payment | /mo
2 Beds
1 Bath
866 SqFt
$ 2,200,000
Est. payment | /mo
2 Beds
1 Bath
866 SqFt
Key Details
Property Type Single Family Home
Sub Type Detached
Listing Status Active
Purchase Type For Sale
Square Footage 866 sqft
Price per Sqft $2,540
MLS Listing ID CRSR25225618
Bedrooms 2
Full Baths 1
HOA Y/N No
Year Built 1951
Lot Size 0.909 Acres
Property Sub-Type Detached
Source Datashare California Regional
Property Description
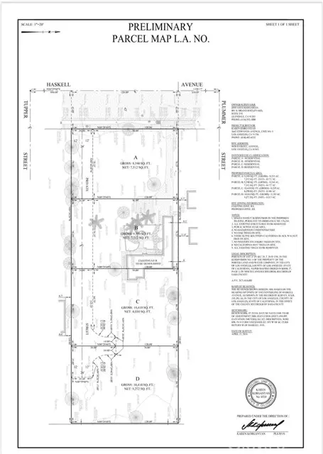
Location and Opportunity! Rare opportunity to own a nearly 1 acre flat lot with tremendous development potential. Parcel map application has already been prepared to divide the lot into 4 lots of approx. 10,000 sq ft each, with tentative plans for a large main house, an ADU and Junior ADU on each lot. All to be connected by a private street. Resulting property can consist of 4 lots with 12 dwellings which can be sold as 4 parcels or rented as 12 dwellings. Project was preliminarily approved by LA City building and safety. Next step is to submit the plans and pay the fees. Alternatively you may modify the plans and build your dream house or try to obtain approval for a higher density development with more units. There are no oak trees on the lot. Seller makes no representations as to what the city will approve. Currently the permitted building is about 800 sq ft and has a 400 sq ft add-on.
Location
State CA
County Los Angeles
Interior
Cooling None
Fireplaces Type Den
Fireplace Yes
Laundry None
Exterior
Garage Spaces 1.0
Pool None
View None
Private Pool false
Building
Lot Description Other
Story 1
Water Public
Schools
School District Los Angeles Unified

© 2025 BEAR, CCAR, bridgeMLS. This information is deemed reliable but not verified or guaranteed. This information is being provided by the Bay East MLS or Contra Costa MLS or bridgeMLS. The listings presented here may or may not be listed by the Broker/Agent operating this website.
GET MORE INFORMATION

Adam Shoop
Broker Associate at LPT Realty | Lic# 1782227






