REQUEST A TOUR If you would like to see this home without being there in person, select the "Virtual Tour" option and your advisor will contact you to discuss available opportunities.
In-PersonVirtual Tour

Listed by Fuguo Wang • 168 Realty Inc.
$ 1,790,000
Est. payment | /mo
5 Beds
3 Baths
2,551 SqFt
$ 1,790,000
Est. payment | /mo
5 Beds
3 Baths
2,551 SqFt
Open House
Sun Dec 14, 1:00pm - 4:00pm
Key Details
Property Type Single Family Home
Sub Type Detached
Listing Status Active
Purchase Type For Sale
Square Footage 2,551 sqft
Price per Sqft $701
MLS Listing ID CRTR25273924
Bedrooms 5
Full Baths 3
HOA Y/N No
Year Built 1945
Lot Size 0.263 Acres
Property Sub-Type Detached
Source Datashare California Regional
Property Description
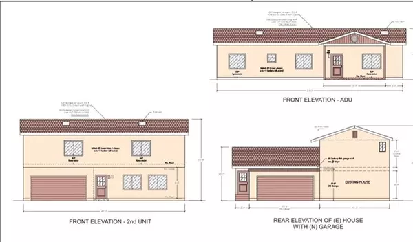
Rare R-3 Zoned Development Opportunity in Prime Monterey Park. This property comes with city-approved plans for two additional units, allowing you to immediately begin your development project and significantly enhance the property's value. The existing fully upgraded home offers 5 bedrooms and 3 bathrooms, with three bedrooms-including the primary suite-on the main level and two additional bedrooms upstairs. The home features laminated flooring throughout and a spacious enclosed patio that serves as a convenient laundry area and extra storage space. Behind the gated driveway, you'll find a two-car garage, ideal for parking, storage, or use as a workshop/studio. The expansive backyard provides further possibilities for improvement and future development. Located within walking distance to restaurants, banks, shops, and the hospital, this property combines unbeatable convenience with strong long-term potential. A perfect choice for developers, investors, or buyers seeking both current rental value and future growth.
Location
State CA
County Los Angeles
Interior
Heating Central
Cooling Central Air, Other
Fireplaces Type Living Room
Fireplace Yes
Appliance Dishwasher, Gas Range
Laundry Laundry Room
Exterior
Garage Spaces 2.0
Pool None
View None
Private Pool false
Building
Lot Description Street Light(s)
Story 2
Water Public
Schools
School District Alhambra Unified

© 2025 BEAR, CCAR, bridgeMLS. This information is deemed reliable but not verified or guaranteed. This information is being provided by the Bay East MLS or Contra Costa MLS or bridgeMLS. The listings presented here may or may not be listed by the Broker/Agent operating this website.
GET MORE INFORMATION

Adam Shoop
Broker Associate at LPT Realty | Lic# 1782227






